Property Description
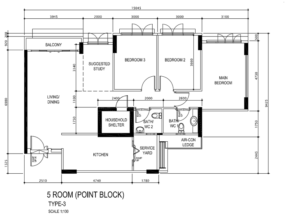
Extremely spacious, tranquil and breezy 1,216 sqft (113 sqm) 5room flat for rent, ideal for families or friends.
This high-floor, industrial designed unit has a Juliet balcony with unblocked views of Punggol Waterway and Punggol Digital District. It boasts and efficient and squarish layout and a spacious living and dining area, perfect for hosting dinner parties for family and friends.
The apartment is also equipped with digital gate/door lock automatic cabinet opening/closings in the kitchen and a bar countertop!
Amenities:
· 24hrs Fairprice just opposite the road, and a bigger one at Oasis (one bus stop away)
· Broadway and Happy Hawkers just around the corner
· Waterway Point one LRT stop away
Accessibility:
· Seamlessly connected to Damai LRT, one stop away from Punggol MRT (NEL)
· Easily connected to TPE
Schools:
· Edgefield, Greendale, Horizon, Oasis and Punggol View Primary (within 1km)
· My First Skool just opposite the block
Sports, Health and Nature:
· Punggol Regional Sports Centre minutes away by foot (2026 operational)
· Doorstep to Punggol Waterway
· Punggol Polyclinic one LRT stop away
.png)
+65 9737 0855
Property Details
Size
1,216 sqft
Property Type
HDB
Available from
RENTED OUT
Bedrooms
3
Bathrooms
2
Property Location
677C Punggol Drive, Singapore










